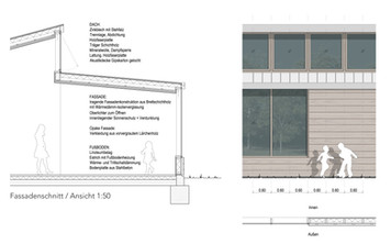
NEUBAU KITA
WEISSE STADT
ORANIENBURG
---------------------------------------------
location
Oranienburg | Germany
---------------------------------------------
year
2020
---------------------------------------------
type
invited competition | mention
---------------------------------------------
program
kindergarden for ~90 children in eight groups
---------------------------------------------
size
1.000 m²
---------------------------------------------
team
Diego Lopez Arahuetes
Marion Geinzer
---------------------------------------------
collaborators
Estudio LAC
AMA Brandschutz








